


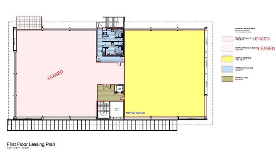
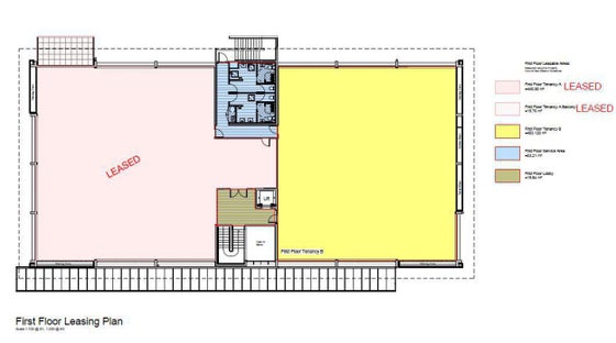
+9Great CBD location for your business
• New premises ready for your fit-out as required by you
• Quality presentation providing you with a location that will welcome customers and staff
alike
• Call me to view and create your vision

Our agents are experts on all things in the property market, if you haven't found what you're looking for, please enquire with the listing agent now to have all of your property questions answered.
Contact us and have your questions answered.